Annexos
Documents i impresos normalitzats requerits per posar en servei instal·lacions d'enllaç
Els documents, els models dels quals hem reproduït tot seguit, són els que precisament l’instal·lador autoritzat en baixa tensió ha d'emetre un cop finalitzada la instal·lació elèctrica de baixa tensió. Aquesta documentació l'heu estudiat a l'apartat “Documents i impresos normalitzats requerits per a la posada en servei de les instal·lacions d'enllaç” de la unitat 6.
Model ELEC-1. Imprès-instància

Descarregueu-vos la versió en pdf:
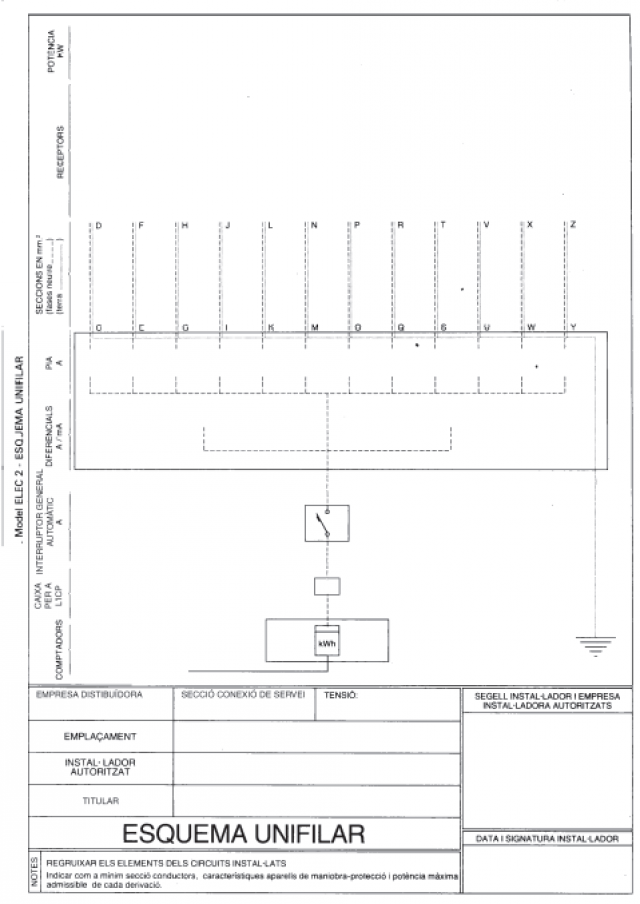
Model ELEC 1 - Imprès-InstànciaModel ELEC-2. Esquema unifilar

Descarregueu-vos la versió en pdf:
Model ELEC 2 - Esquema unifilarModel ELEC-3. Memòria tècnica

Descarregueu-vos la versió en pdf:
Model ELEC 3 - Memòria TècnicaModel ELEC-4. Certificat de direcció i acabament d'obra de la instal·lació elèctrica de baixa tensió

Descarregueu-vos la versió en pdf:
Model ELEC 4 (BT)Model ELEC-5. Llista d'instal·lacions auxiliars i aparells subjectes als reglaments específics de seguretat industrial

Descarregueu-vos la versió en pdf:
Model ELEC 5 - Reglaments de seguretatModel del certificat d'instal·lació elèctrica de baixa tensió


Descarregueu-vos la versió en pdf:
Certificat de instal·lació elèctrica de baixa tensióModel del certificat d'instal·lació elèctrica de baixa tensió (2008_Atraccions de fira ambulants amb instal·lació elèctrica pròpia)

Descarregueu-vos la versió en pdf:
Certificat instal·lació elèctrica en baixa tensió de fires i ambulants

Descarregueu-vos la versió en pdf:
Butlletí de reconeixementVerificacions, inspeccions i documents previs a la posada en servei de les instal·lacions elèctriques de baixa tensió.
La posada en servei i utilització de les instal·lacions elèctriques estan condicionades a una sèrie de verificacions, inspeccions i documents que un instal·lador autoritzat en baixa tensió ha de realitzar.
Aquest document resumeix els diferents tipus de verificacions que han 'efectuar els instal·ladors autoritzats
GUIA-BT-Annex 4Aquests documents són els que l’instal·lador autoritzat ha d'emetre quan acabi de verificar i inspeccionar una instal·lació elèctrica de baixa tensió. Els heu estudiat en l'apartat “Verificacions prèvies a la posada en servei” de la unitat 6.
GUIA-BT-05Normativa general del sector elèctric
L’instal·lador autoritzat en baixa tensió ha de tenir coneixement dels documents que hem reproduït mes a baix, tots relacionats amb la normativa general del sector elèctric.
Llei 54/1997, de 27 de novembre, del sector elèctric
Llei del sector elèctric 54-1997. Títol I (“Disposicions generals. Competències administratives i planificació elèctrica”), article 1 (“Objecte”), article 2 (“Règim de les activitats”) i article 3 (“Competències de les autoritats reguladores”).
Títol ILlei del sector elèctric 54-1997. Títol II, article 9 (“Subjectes”), article 10 (“Garantia del subministrament”) i article 11 (“Funcionament del sistema”).
Títol IIReial decret 1955/2000, d'1 de desembre, BOE de 27 desembre de 2000 Aquest RD regula les activitats de transport, distribució, comercialització, subministrament i procediments d'autorització d'instal·lacions d'energia elèctrica:
Reial Decret 1955